Nyelv:
Kezdd el!
Eladó
Kiadó
Tulajdonos vagyok
Ingatlanos vagyok
Zoomlla-funkciók
Eladó lakás Budapest XIV. Alsóráko..
1147 Budapest
ID: 56958
94.9 M Ft (1.4 M Ft/m2)
Terület
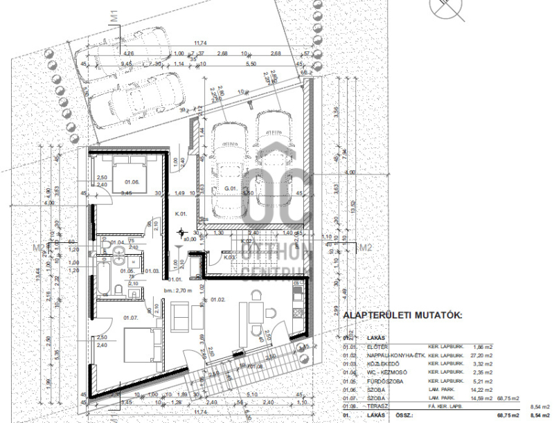
69 m2
Hálószobák
3
Ingatlan adatok
Típus: Lakás
Terület: 69 m2
Hálószobák: 3
Építés éve: Max. 5 éve
Ár: 94 900 000 Ft
Ár/m2: 1.4 M Ft/m2
Emelet: 1+ emelet
Kilátás az ingatlanból: Park
Leírás
Zuglói újépítésű lakások hőszivattyús fűtéssel.
A Bosnyák tér vonzáskörzetében épülő 4 lakásos társasház tervezett átadása 2024 november!
A földszinti 3 szobás lakáshoz 17 nm-es erkély tartozik.

Választható burkolatok: hidegburkolat: 8000 Ft/nm, meleg burkolat: 5000 Ft/nm
A garázs ára +6 M Ft, a felszíni beálló +3 M Ft.

További elérhető lakáso
...
+ Tovább olvasom
Lokáció
1147 Budapest