Nyelv:
Kezdd el!
Eladó
Kiadó
Tulajdonos vagyok
Ingatlanos vagyok
Zoomlla-funkciók
Eladó lakás Budapest X. Ligettelek 1..
1102 Budapest
ID: 56398
59 M Ft (551 E Ft/m2)
Terület
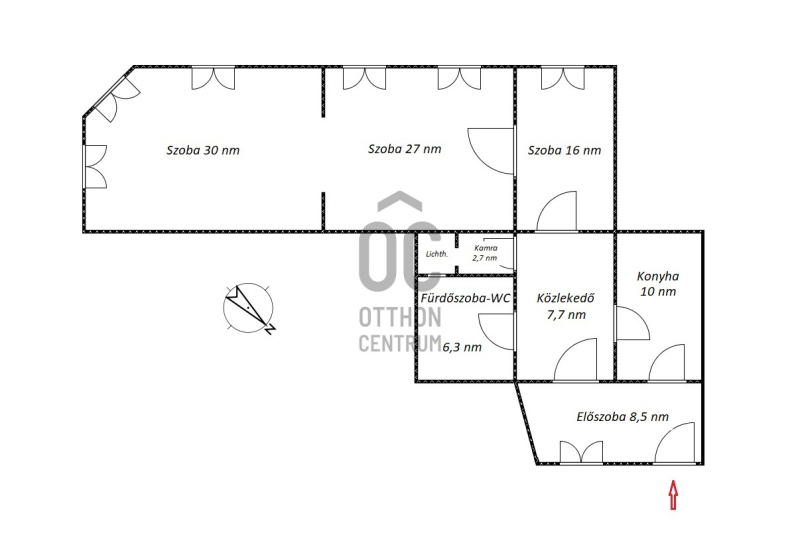
107 m2
Hálószobák
3
Ingatlan adatok
Típus: Lakás
Terület: 107 m2
Hálószobák: 3
Építés éve: 20+ éve
Ár: 59 000 000 Ft
Ár/m2: 551 E Ft/m2
Emelet: 1+ emelet
Kilátás az ingatlanból: Város
Leírás
Eladásra kínálunk a X. kerületben, Ligetteleken, 9 lakásos, földszintes, társasházban, felújítandó, 107 nm-es, 3 szobás, nagypolgári, 380 cm belmagasságú lakást. A bejárat, másik 2 ingatlannal együtt belső udvarról nyílik, míg a további 5 ingatlant a szuterén szinten alakítottak ki. A lakást jelen ideig tervezőirodának használták. A fűtést gázégőfe...
+ Tovább olvasom
Lokáció
1102 Budapest