Nyelv:
Kezdd el!
Eladó
Kiadó
Tulajdonos vagyok
Ingatlanos vagyok
Zoomlla-funkciók
Eladó lakás Paks 70m2
7030 Paks
ID: 56301
77 M Ft (1.1 M Ft/m2)
Terület
70 m2
Hálószobák
3
Ingatlan adatok
Típus: Lakás
Terület: 70 m2
Hálószobák: 3
Építés éve: Max. 5 éve
Ár: 77 000 000 Ft
Ár/m2: 1.1 M Ft/m2
Emelet: 1+ emelet
Kilátás az ingatlanból: Park
Leírás
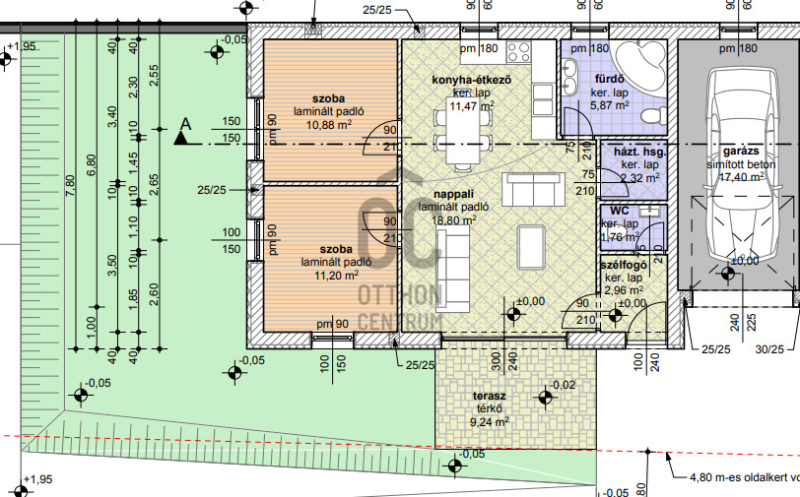
Paks lakótelep közeli új építésű lakások eladók
Paks lakótelep közelében , 4 lakásos társasházban eladó ez az új építésű lakás.
Az ingatlanban 2 hálószoba, nappali, étkező-konyha , fürdőszoba, külön wc háztartási helyiség, terasz is található. A lakás rendkívül alacsony rezsiköltségét a hőszivattyús fűtés biztosítja, padlófűtésen keresztül.
A minős
...
+ Tovább olvasom
Lokáció
7030 Paks