Nyelv:
Kezdd el!
Eladó
Kiadó
Tulajdonos vagyok
Ingatlanos vagyok
Zoomlla-funkciók
Eladó lakás Zalaegerszeg Belváros 6..
8900 Zalaegerszeg
ID: 55513
65.7 M Ft (1 M Ft/m2)
Terület
65 m2
Hálószobák
2
Ingatlan adatok
Típus: Lakás
Terület: 65 m2
Hálószobák: 2
Építés éve: Max. 5 éve
Ár: 65 704 196 Ft
Ár/m2: 1 M Ft/m2
Emelet: Felső szint
Kilátás az ingatlanból: Város
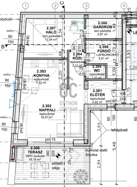
Leírás
Borostyán társasház Zalaegerszeg belvárosában, csendes lakóövezetben épül, két emeletével mindössze 4 lakásnak nyújtva tökéletes helyszínt. Modern tervezésének és praktikus kialakításának köszönhetően az álmaik otthonát keresőknek és a befektetőknek is ideális választás!

A minőségi, igényesen felszerelt, tágas, Déli terasszal ellátott lakások az a
...
+ Tovább olvasom
Lokáció
8900 Zalaegerszeg