Nyelv:
Kezdd el!
Eladó
Kiadó
Tulajdonos vagyok
Ingatlanos vagyok
Zoomlla-funkciók
Eladó ház Kocsér 61m2
2755 Kocsér
ID: 55442
78 M Ft (1 E Ft/m2)
Terület
115061 m2
Hálószobák
2
Ingatlan adatok
Típus: Ház
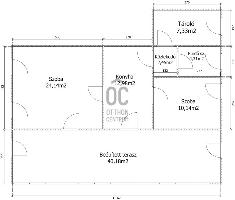
Terület: 61 m2
Erkély / Terasz területe: 230000 m2
Hálószobák: 2
Építés éve: 20+ éve
Ár: 78 000 000 Ft
Ár/m2: 1 E Ft/m2
Emelet: 1+ emelet
Leírás
Kocsér külterületén , a központól kb. 5km távolságra kínálok megvételre Két tanyát az egyik 960m2 területtel valamint a hozzátartozó 11.7 ha szántó,0.3ha szántó és út, 9.9 ha erdő és út , nagyságú földrészlettel.
A másik tanya 2913M2 nagysságú körbekerített telekkel rendelkezik.
Az ingatlan remek lokációval ,jó helyen található, végig as
...
+ Tovább olvasom
Lokáció
2755 Kocsér