Nyelv:
Kezdd el!
Eladó
Kiadó
Tulajdonos vagyok
Ingatlanos vagyok
Zoomlla-funkciók
Eladó lakás Pécs 65m2
7624 Pécs
ID: 55161
72 M Ft (1.1 M Ft/m2)
Terület
65 m2
Hálószobák
2
Ingatlan adatok
Típus: Lakás
Terület: 65 m2
Hálószobák: 2
Építés éve: Max. 5 éve
Ár: 72 000 000 Ft
Ár/m2: 1.1 M Ft/m2
Emelet: 1+ emelet
Kilátás az ingatlanból: Belső udvar
Leírás
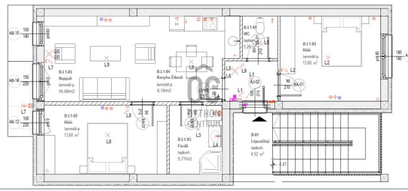
B épület földszint
Nappali 2 hálószobás teraszos lakás
B-L1
Projekt bemutatása

Pécs belvárosában az Egyetemvárosban új építésű lakások eladók.
Az építkezés elkezdődött, a lakások műszaki átadása 2024. év júniusában várható.
A lakások egyedi fűtéssel kerülnek kialakításra, így független módon, pontosan elszámolhatóak a költségek minden tulajdonos s
...
+ Tovább olvasom
Lokáció
7624 Pécs