Nyelv:
Kezdd el!
Eladó
Kiadó
Tulajdonos vagyok
Ingatlanos vagyok
Zoomlla-funkciók
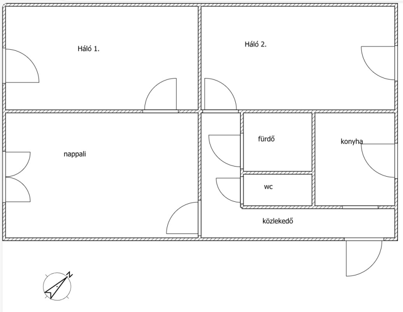
Eladó lakás Budapest X. Óhegy 63m2
1105 Budapest
ID: 54983
43.8 M Ft (695 E Ft/m2)
Terület
63 m2
Hálószobák
3
Ingatlan adatok
Típus: Lakás
Terület: 63 m2
Hálószobák: 3
Építés éve: 20+ éve
Ár: 43 800 000 Ft
Ár/m2: 695 E Ft/m2
Emelet: Felső szint
Kilátás az ingatlanból: Város
Leírás
Akik vágynak a tágas világos terekre, vagy a jó közlekedésre, vagy csak egy igényes lakást keresnek, azoknak itt a lehetőség.
Ajánlom figyelmükbe ezt az óhegyi, 7. emelti, csúsztatott zsalus lakást.

Amit a lakásról tudni érdemes:
* 63 négyzetméter
* 3 nagy szoba
* külön fürdő és wc
* igényes burkolatok
* műanyag nyílászárók redőnnyel
* alacsony
...
+ Tovább olvasom
Lokáció
1105 Budapest