Nyelv:
Kezdd el!
Eladó
Kiadó
Tulajdonos vagyok
Ingatlanos vagyok
Zoomlla-funkciók
Eladó ház Kerepes 90m2
2144 Kerepes
ID: 54827
76.8 M Ft (237 E Ft/m2)
Terület
324 m2
Hálószobák
4
Ingatlan adatok
Típus: Ház
Terület: 90 m2
Erkély / Terasz területe: 468 m2
Hálószobák: 4
Építés éve: Max. 5 éve
Ár: 76 800 000 Ft
Ár/m2: 237 E Ft/m2
Emelet: 1+ emelet
Leírás
A Panoráma lakóparkban, Kerepesen eladóvá vált egy új építésű kiváló minőségi alapanyagokkal megépített önálló családi ház!
Egy telken 2 önálló, körbejárható, kerítéssel elválasztott családi házak közül most még választhat!

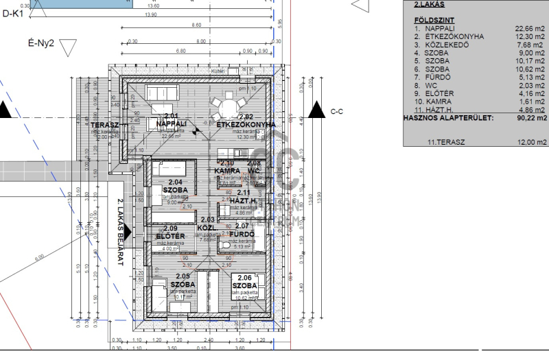
Utcafrontról nézve a hátsó ház, azaz 2. "lakás" ismertetői:

- nettó 90,22 nm -es
- terasza 12 nm
- 468 nm telek tartozik hoz
...
+ Tovább olvasom
Lokáció
2144 Kerepes