Nyelv:
Kezdd el!
Eladó
Kiadó
Tulajdonos vagyok
Ingatlanos vagyok
Zoomlla-funkciók
Eladó lakás Budakeszi 65m2
2092 Budakeszi
ID: 54411
65.9 M Ft (1 M Ft/m2)
Terület
65 m2
Hálószobák
4
Ingatlan adatok
Típus: Lakás
Terület: 65 m2
Hálószobák: 4
Építés éve: Max. 5 éve
Ár: 65 900 000 Ft
Ár/m2: 1 M Ft/m2
Emelet: 1+ emelet
Kilátás az ingatlanból: Park
Leírás
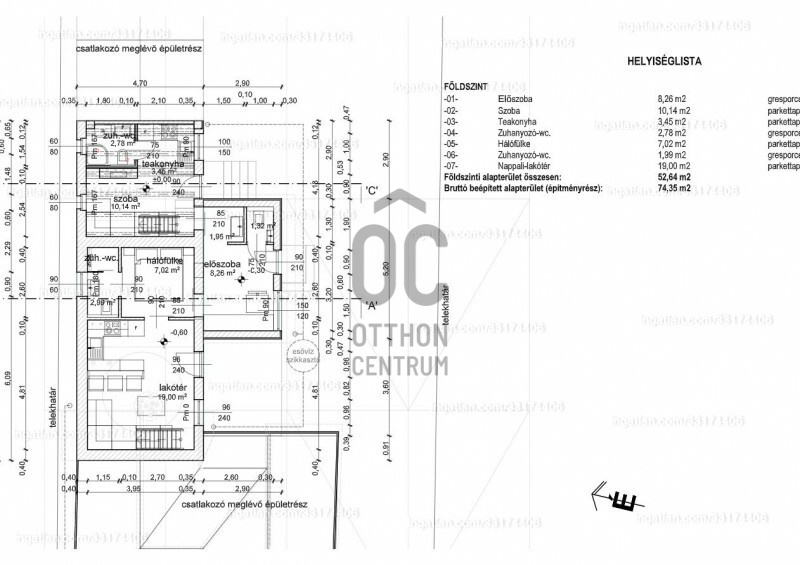
Budakeszi csendes, központhoz közeli utcájában eladó egy teljes felújítás alatt lévő lakás.

A földszinti rész 40nm-es az alaprajz szerinti kialakítással, a tetőtér 25 nm-es.
Új falak, új födém, új tető, új gépészet a lakásban
Új hőszivattyús fűtési és hűtési rendszer padlófűtéssel és fan coillal, napelemes rendszerrel.
"BB" energiabesorolás, ami
...
+ Tovább olvasom
Lokáció
2092 Budakeszi