Nyelv:
Kezdd el!
Eladó
Kiadó
Tulajdonos vagyok
Ingatlanos vagyok
Zoomlla-funkciók
Eladó lakás Budapest VI. Nagykörút..
1065 Budapest
ID: 54388
134.9 M Ft (1.2 M Ft/m2)
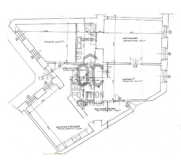
Terület
117 m2
Hálószobák
3
Ingatlan adatok
Típus: Lakás
Terület: 117 m2
Hálószobák: 3
Építés éve: 20+ éve
Ár: 134 900 000 Ft
Ár/m2: 1.2 M Ft/m2
Emelet: Felső szint
Kilátás az ingatlanból: Város
Leírás
Eladó ez a kíváló adottságú lakás a Bazilikával szemben. A nappali plusz 3 szobás, 2 fürdős ingatlan könnyen két lakássá alakítható. Rbnb-t a ház engedélyezi. Tovabbi részletekért keressen bizalommal!

---
További információk:
Lokáció
1065 Budapest