Nyelv:
Kezdd el!
Eladó
Kiadó
Tulajdonos vagyok
Ingatlanos vagyok
Zoomlla-funkciók
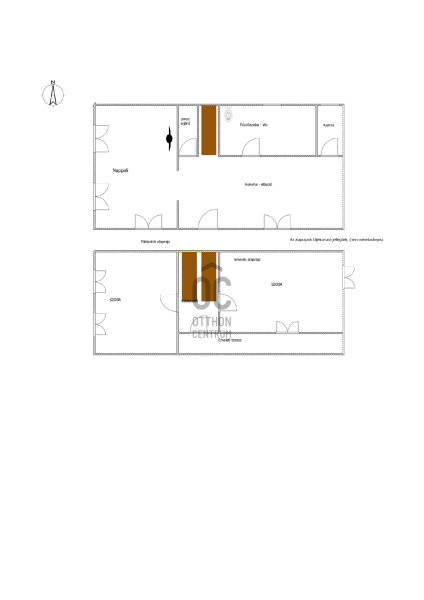
Eladó ház Nagykáta 70m2
2760 Nagykáta
ID: 54114
18.5 M Ft (37 E Ft/m2)
Terület
495 m2
Hálószobák
3
Ingatlan adatok
Típus: Ház
Terület: 70 m2
Erkély / Terasz területe: 850 m2
Hálószobák: 3
Építés éve: 20+ éve
Ár: 18 500 000 Ft
Ár/m2: 37 E Ft/m2
Emelet: 1+ emelet
Leírás
Nagykáta külső kertvárosi részén eladóvá vált egy egyszintes, (beton alap, tégla falazatú) kiválóan karbantartott családi ház, rendezett kerttel. Jó minőségű hőszigetelt üvegezésü nyílászárókkal redőnnyel szúnyoghálóval ellátva, minden szinten, szép terasszal, és az emeleten nagy erkéllyel. Az teraszról belépve a nagy amerikai jellegű konyha és ét...
+ Tovább olvasom
Lokáció
2760 Nagykáta