Nyelv:
Kezdd el!
Eladó
Kiadó
Tulajdonos vagyok
Ingatlanos vagyok
Zoomlla-funkciók
Eladó lakás Budapest XVI. Rákosszen..
1161 Budapest
ID: 53577
118.9 M Ft (1.4 M Ft/m2)
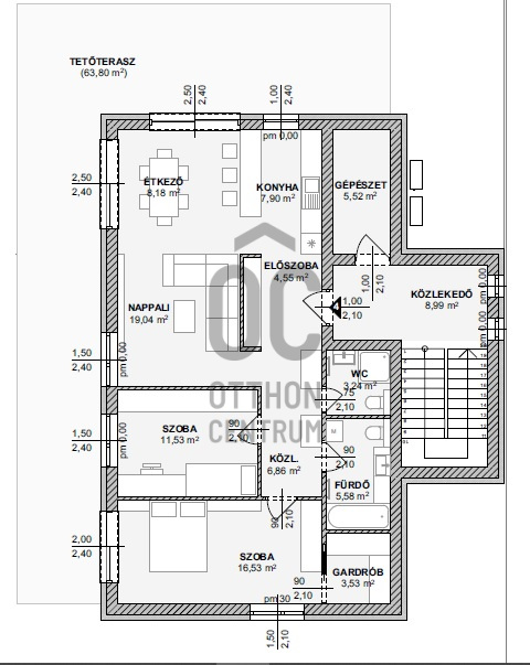
Terület
87 m2
Hálószobák
3
Ingatlan adatok
Típus: Lakás
Terület: 87 m2
Hálószobák: 3
Építés éve: Max. 5 éve
Ár: 118 900 000 Ft
Ár/m2: 1.4 M Ft/m2
Emelet: Felső szint
Kilátás az ingatlanból: Város
Leírás
XVI. kerület Zuglóhoz közeli részén, a Hársfaligetben található ez a 4 lakásos társasház, amely magas színvonalú műszaki tartalommal, exkluzív kivitelezésben valósul meg. A kis lakásszámnak köszönhetően a lakóknak nem kell egy nagy lakóközösség problémáival vesződnie.
A környezet nagyon kellemes, új építésű rész, jó infrastrukturális ellátással. N
...
+ Tovább olvasom
Lokáció
1161 Budapest