Nyelv:
Kezdd el!
Eladó
Kiadó
Tulajdonos vagyok
Ingatlanos vagyok
Zoomlla-funkciók
Eladó lakás Vecsés 62m2
2220 Vecsés
ID: 53454
64.9 M Ft (1 M Ft/m2)
Terület
62 m2
Hálószobák
3
Ingatlan adatok
Típus: Lakás
Terület: 62 m2
Hálószobák: 3
Építés éve: Max. 20 éve
Ár: 64 900 000 Ft
Ár/m2: 1 M Ft/m2
Emelet: 1+ emelet
Kilátás az ingatlanból: Belső udvar
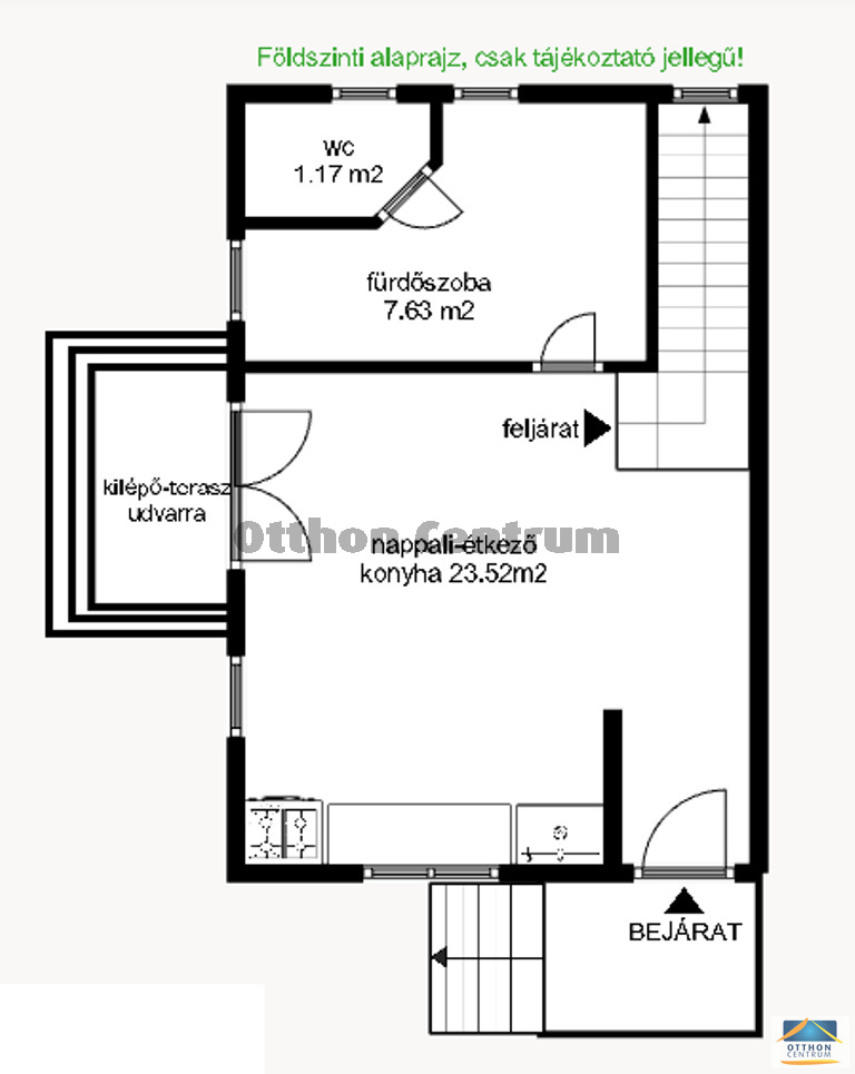
Leírás
- 3 szobás
- szélső lakása egy 4-es sorháznak,
- 2006-ban újonnan épült,
- 2021-ben fürdőszoba felújításra került, illetve a konyhai burkolatok is cserélve lettek,
- belső 2 szintes,
- emeleten eredetileg 3 szoba lett tervezve + WC kézmosó,
- földszinten nappali-étkező-konyha, fürdő WC-vel,
- nagy méretű saját telekkel,
- 2 gépkocsi és 1 személy ka
...
+ Tovább olvasom
Jellemzők
  • Erkély
Lokáció
2220 Vecsés