Nyelv:
Kezdd el!
Eladó
Kiadó
Tulajdonos vagyok
Ingatlanos vagyok
Zoomlla-funkciók
Eladó lakás Torony 66m2
9791 Torony
ID: 53420
52.6 M Ft (797 E Ft/m2)
Terület
66 m2
Hálószobák
3
Ingatlan adatok
Típus: Lakás
Terület: 66 m2
Hálószobák: 3
Építés éve: Max. 5 éve
Ár: 52 600 000 Ft
Ár/m2: 797 E Ft/m2
Emelet: 1+ emelet
Kilátás az ingatlanból: Város
Leírás
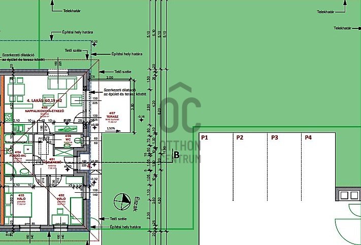
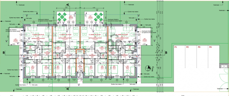
Toronyban kínál az Otthon Centrum kedves ügyfeleinek új építésű kertkapcsolatos, közel 0 rezsiköltségű társasházi ikerlakásokat.
A község földrajzi elhelyezkedése igen előnyös: az osztrák határtól 7 km-re, Szombathelytől 8 km-re fekszik. A település infrastruktúrája kiváló.
Az ingatlanok tégla építésű, szigetelt, 62-66 nm alapterületűek. Fűtés és m
...
+ Tovább olvasom
Lokáció
9791 Torony