Nyelv:
Kezdd el!
Eladó
Kiadó
Tulajdonos vagyok
Ingatlanos vagyok
Zoomlla-funkciók
Eladó lakás Budapest XIII. Vizafogó..
1138 Budapest
ID: 53373
256.2 M Ft (2.6 M Ft/m2)
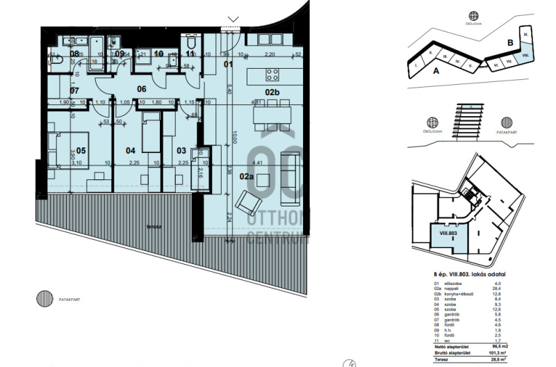
Terület
97 m2
Hálószobák
4
Ingatlan adatok
Típus: Lakás
Terület: 97 m2
Hálószobák: 4
Építés éve: Max. 5 éve
Ár: 256 147 500 Ft
Ár/m2: 2.6 M Ft/m2
Emelet: Felső szint
Kilátás az ingatlanból: Park
Leírás
A RiverBay Residence azt a klasszikus dunaparti hangulatot idézi, ami ismerős lehet a Római parti idillből. Ez a természetes plázs lesz az a hely, ahol semmi más dolgunk nincs, mint kivenni a hűtőből egy üveg frissítőt, sétálni pár métert, leülni a nyugágyunkra és nézni a gondtalanul hullámzó Dunát.

A XIII. kerületben a Duna parton kínálunk eladás
...
+ Tovább olvasom
Lokáció
1138 Budapest