Nyelv:
Kezdd el!
Eladó
Kiadó
Tulajdonos vagyok
Ingatlanos vagyok
Zoomlla-funkciók
Eladó lakás Paks Belváros 51m2
7030 Paks
ID: 53344
63 M Ft (1.2 M Ft/m2)
Terület
51 m2
Hálószobák
3
Ingatlan adatok
Típus: Lakás
Terület: 51 m2
Hálószobák: 3
Építés éve: Max. 5 éve
Ár: 63 000 000 Ft
Ár/m2: 1.2 M Ft/m2
Emelet: 1+ emelet
Kilátás az ingatlanból: Belső udvar
Leírás
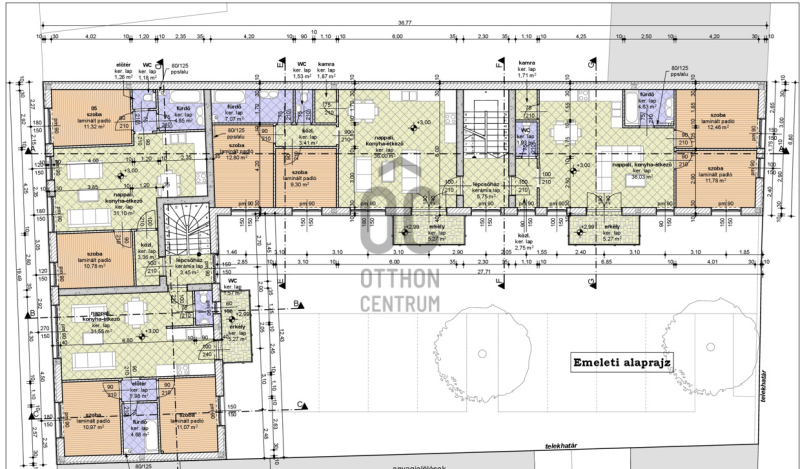
Paks belvárosában új építésű társasházi lakás eladó
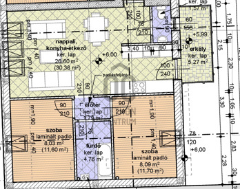
Paks belvárosában, 8 lakásos társasházban eladó ez a bruttó 67nm-es új építésű lakás 2024-es átadással
a 2. emeleti ,tetőtéri lakásban található egy nappali -étkező-konyha 26.6nm(30,38nm) 2 hálószoba 8.3 és 8.9nm (11,6 és11.7nm) előtér, fürdőszoba, wc és erkély is.
A belső kialakítás, a műszaki t
...
+ Tovább olvasom
Jellemzők
  • Erkély
Lokáció
7030 Paks