Nyelv:
Kezdd el!
Eladó
Kiadó
Tulajdonos vagyok
Ingatlanos vagyok
Zoomlla-funkciók
Eladó lakás Paks Belváros 54m2
7030 Paks
ID: 53343
63 M Ft (1.2 M Ft/m2)
Terület
54 m2
Hálószobák
3
Ingatlan adatok
Típus: Lakás
Terület: 54 m2
Hálószobák: 3
Építés éve: Max. 5 éve
Ár: 63 000 000 Ft
Ár/m2: 1.2 M Ft/m2
Emelet: 1+ emelet
Kilátás az ingatlanból: Város
Leírás
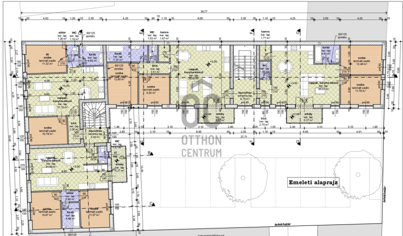
Paks belvárosában új építésű társasházi lakás eladó
Paks belvárosában, 8 lakásos társasházban eladó ez a 2. emeleti, tetőtéri 54nm (63,85nm)-es új építésű lakás 2024-es átadással
A lakásban található egy nagy 27,23 (31.1)nm-es nappali-étkező-konyha, 2 hálószoba 8,23(10,78)nm és 8,69(11,32)nm-es, előtér, közlekedő, fürdőszoba és külön wc is.
A belső
...
+ Tovább olvasom
Lokáció
7030 Paks