Nyelv:
Kezdd el!
Eladó
Kiadó
Tulajdonos vagyok
Ingatlanos vagyok
Zoomlla-funkciók
Eladó lakás Budapest XIII. Angyalfö..
1135 Budapest
ID: 53150
66 M Ft (1.8 M Ft/m2)
Terület
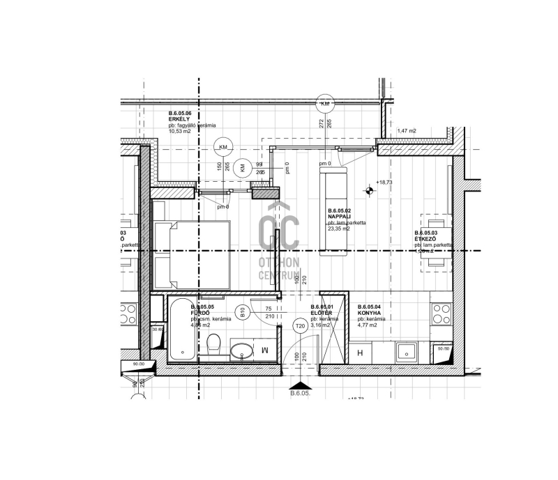
37 m2
Hálószobák
1
Ingatlan adatok
Típus: Lakás
Terület: 37 m2
Hálószobák: 1
Építés éve: Max. 5 éve
Ár: 66 037 000 Ft
Ár/m2: 1.8 M Ft/m2
Emelet: Felső szint
Kilátás az ingatlanból: Park
Leírás
Projekt bemutatása

A XIII. kerület legfrekventáltabb részén, közel az M3-as metró Göncz Árpád Városközponti megállójához (Árpád híd) és az 1-es villamoshoz, csendes mellékutcában kínálunk eladásra újépítésű lakásokat, számos referenciával rendelkező, nagymúltú beruházó projektjében.

A lakások változatos méretűek: a stúdió lakástól a nagyteraszos,
...
+ Tovább olvasom
Jellemzők
  • Erkély
Lokáció
1135 Budapest