Nyelv:
Kezdd el!
Eladó
Kiadó
Tulajdonos vagyok
Ingatlanos vagyok
Zoomlla-funkciók
Eladó lakás Budapest IX. Belső Fere..
1095 Budapest
ID: 53131
67.9 M Ft (1.2 M Ft/m2)
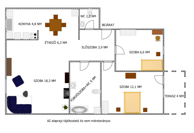
Terület
59 m2
Hálószobák
3
Ingatlan adatok
Típus: Lakás
Terület: 59 m2
Hálószobák: 3
Építés éve: Max. 20 éve
Ár: 67 900 000 Ft
Ár/m2: 1.2 M Ft/m2
Emelet: Felső szint
Kilátás az ingatlanból: Belső udvar
Leírás
KIVÉTELES LEHETŐSÉG A IX.KERÜLET KÖZKEDVELT DÍSZBURKOLATOS UTCÁJÁBAN!
Eladó egy amerikai konyhás-nappalis+ két hálószobás, 59 nm-es újszerű,erkélyes lakás .
Az ingatlan egy 2006-ban épült LIFTES rendezett ház ELSŐ emeletén található.

- TEHERMENTES, rendezett tulajdoni jogviszonyok
- GYORS KÖLTÖZÉS, akár bútorozva, megegyezés kérdése
- PARKOS, CS
...
+ Tovább olvasom
Jellemzők
  • Erkély
Lokáció
1095 Budapest