Nyelv:
Kezdd el!
Eladó
Kiadó
Tulajdonos vagyok
Ingatlanos vagyok
Zoomlla-funkciók
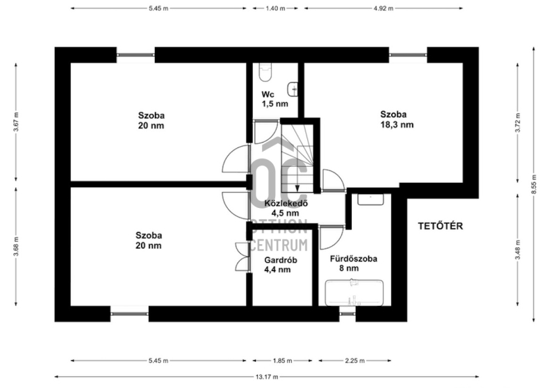
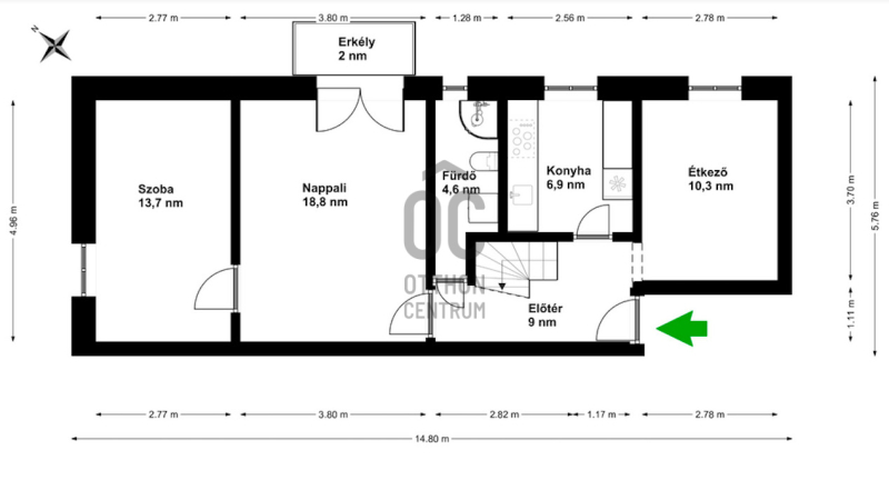
Eladó lakás Szentendre 111m2
2000 Szentendre
ID: 52787
64.9 M Ft (585 E Ft/m2)
Terület
111 m2
Hálószobák
5
Ingatlan adatok
Típus: Lakás
Terület: 111 m2
Hálószobák: 5
Építés éve: 20+ éve
Ár: 64 900 000 Ft
Ár/m2: 585 E Ft/m2
Emelet: Felső szint
Kilátás az ingatlanból: Város
Leírás
*** 5 SZOBÁS, BELSŐ KÉT SZINTES LAKÁS, KÖZPONTI HELYEN SZENTENDRÉN, PÁRATLAN ELLÁTOTTSÁGGAL ÉS KÖZLEKEDÉSSEL ***


Szentendre Pannóniatelep városrészén, 16 lakásos, tégla építésű társasház 2. emeletén, belső két szintes, 5 szobás, nettó 111 nm-es lakás eladó, saját tárolóval.

A lakás az 1950-es években épült társasház második (legfelső) emeletén t
...
+ Tovább olvasom
Jellemzők
  • Erkély
Lokáció
2000 Szentendre