Nyelv:
Kezdd el!
Eladó
Kiadó
Tulajdonos vagyok
Ingatlanos vagyok
Zoomlla-funkciók
Eladó ház Szigetszentmiklós 163m2
2310 Szigetszentmiklós
ID: 52420
155 M Ft (283 E Ft/m2)
Terület
548 m2
Hálószobák
5
Ingatlan adatok
Típus: Ház
Terület: 163 m2
Erkély / Terasz területe: 770 m2
Hálószobák: 5
Építés éve: Max. 20 éve
Ár: 155 000 000 Ft
Ár/m2: 283 E Ft/m2
Emelet: 1+ emelet
Leírás
Prémium minőségű mediterrán stílusú családi ház Szigetszentmiklóson!
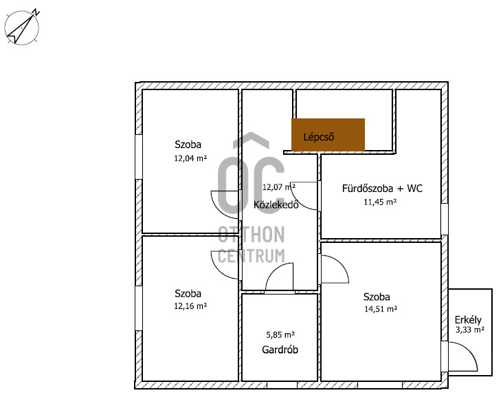
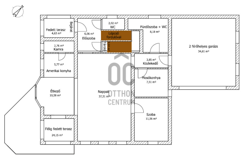
Eladó 198 m2-es, 5 szobás, 770m2-es udvarral ellátott szigetszentmiklósi mediterrán stílusú családi ház.

A város központjához közel, mégis csendes részén, mely közelében megtalálható:
- bevásárlóközpont, éttermek,
- városközpont, iskolák, háziorvos,
- remek tömegközlekedés: buszm
...
+ Tovább olvasom
Lokáció
2310 Szigetszentmiklós