Nyelv:
Kezdd el!
Eladó
Kiadó
Tulajdonos vagyok
Ingatlanos vagyok
Zoomlla-funkciók
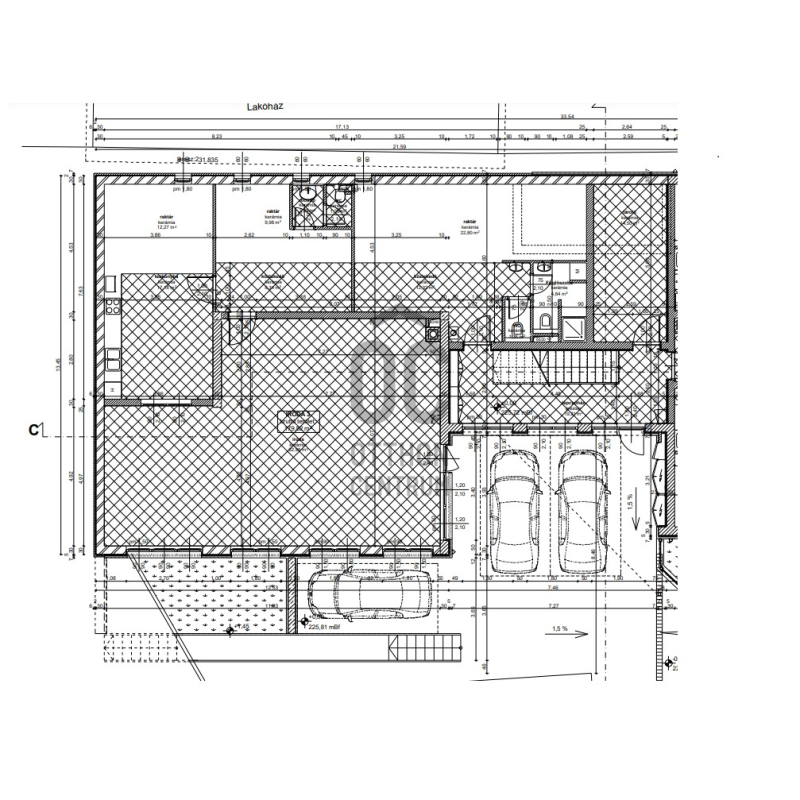
Eladó lakás Budakeszi 174m2
2092 Budakeszi
ID: 52410
91.9 M Ft (528 E Ft/m2)
Terület
174 m2
Hálószobák
4
Ingatlan adatok
Típus: Lakás
Terület: 174 m2
Hálószobák: 4
Építés éve: Max. 20 éve
Ár: 91 900 000 Ft
Ár/m2: 528 E Ft/m2
Emelet: 1+ emelet
Kilátás az ingatlanból: Belső udvar
Leírás
Budakeszi központban csak egy lépésre a kék busztól és boltoktól, eladó egy biztonságos zárt belső udvarból megközelíthető nettó 174 nm nagyságú lakás befejezés előtti állapotban. A lakás jelenleg egy nagyobb és egy kisebb lakóegységként üzeme, szerkezete megengedi, hogy a falakat is igény szerint helyezzük el saját igény szerint. A közművek duplá...
+ Tovább olvasom
Lokáció
2092 Budakeszi