Nyelv:
Kezdd el!
Eladó
Kiadó
Tulajdonos vagyok
Ingatlanos vagyok
Zoomlla-funkciók
Eladó lakás Budapest XIV. Istvánmez..
1143 Budapest
ID: 52205
80 M Ft (769 E Ft/m2)
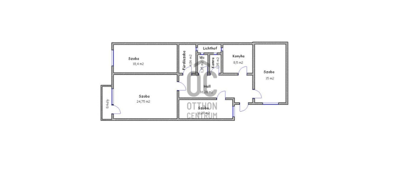
Terület
104 m2
Hálószobák
4
Ingatlan adatok
Típus: Lakás
Terület: 104 m2
Hálószobák: 4
Építés éve: 20+ éve
Ár: 80 000 000 Ft
Ár/m2: 769 E Ft/m2
Emelet: Felső szint
Kilátás az ingatlanból: Város
Leírás
Eladó a 14. kerület Istvánmező városrészében, a Hungária körúton egy 104 m2-es, 4 szobás, 3. emeleti, nagypolgári, erkélyes, téglaépítésű lakás.

- A lakás tágas, nagycsaládosoknak is tökéletes, a magas belmagasság miatt (320 cm) galéria is kialakítható.
- Régi idők megkapó eleganciáját idézhetjük meg a körfolyosós házakra jellemző stíluselemekkel.
...
+ Tovább olvasom
Jellemzők
  • Erkély
Lokáció
1143 Budapest