Nyelv:
Kezdd el!
Eladó
Kiadó
Tulajdonos vagyok
Ingatlanos vagyok
Zoomlla-funkciók
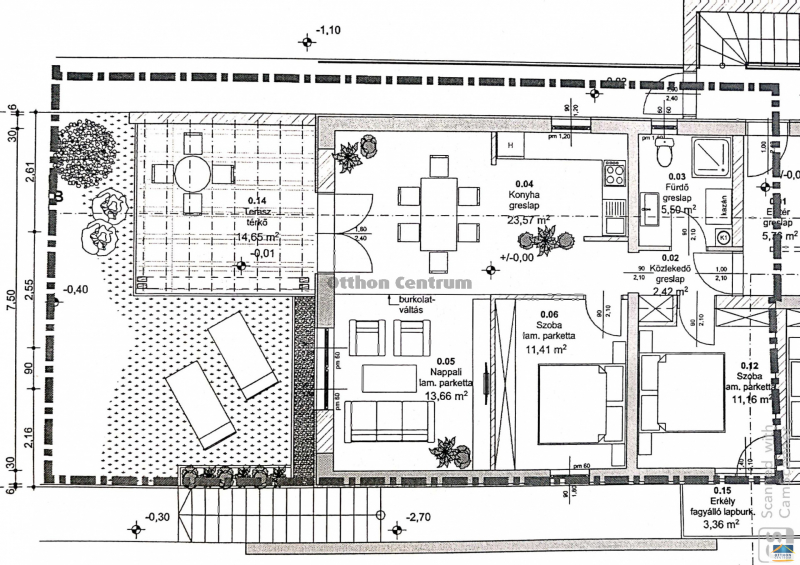
Eladó lakás Hévíz 75m2
8380 Hévíz
ID: 51464
66.5 M Ft (887 E Ft/m2)
Terület
75 m2
Hálószobák
3
Ingatlan adatok
Típus: Lakás
Terület: 75 m2
Hálószobák: 3
Építés éve: Max. 5 éve
Ár: 66 488 400 Ft
Ár/m2: 887 E Ft/m2
Emelet: 1+ emelet
Kilátás az ingatlanból: Belső udvar
Leírás
Hévíz kedvelt városrészén újépítésű lakás eladó!

Az ingatlan főbb jellemzői:
- 75 nm lakótér
- tágas nappali-konyha-étkező
- étkezőből közvetlen kapcsolat a teraszra
- 2 hálószoba
- panorámás erkély
- zárt udvarban 2 autó számára beálló

Amennyiben felkeltettem érdeklődését hívjon bizalommal!

---
További információk: különnyíló szobák
...
+ Tovább olvasom
Jellemzők
  • Erkély
Lokáció
8380 Hévíz