Nyelv:
Kezdd el!
Eladó
Kiadó
Tulajdonos vagyok
Ingatlanos vagyok
Zoomlla-funkciók
Eladó lakás Budapest XI. Sasad-Sashegy..
1118 Budapest
ID: 109895
169.9 M Ft (1.5 M Ft/m2)
Terület
114 m2
Hálószobák
4
Ingatlan adatok
Típus: Lakás
Terület: 114 m2
Hálószobák: 4
Építés éve: 20+ éve
Ár: 169 900 000 Ft
Ár/m2: 1.5 M Ft/m2
Emelet: 1+ emelet
Kilátás az ingatlanból: Város
Leírás
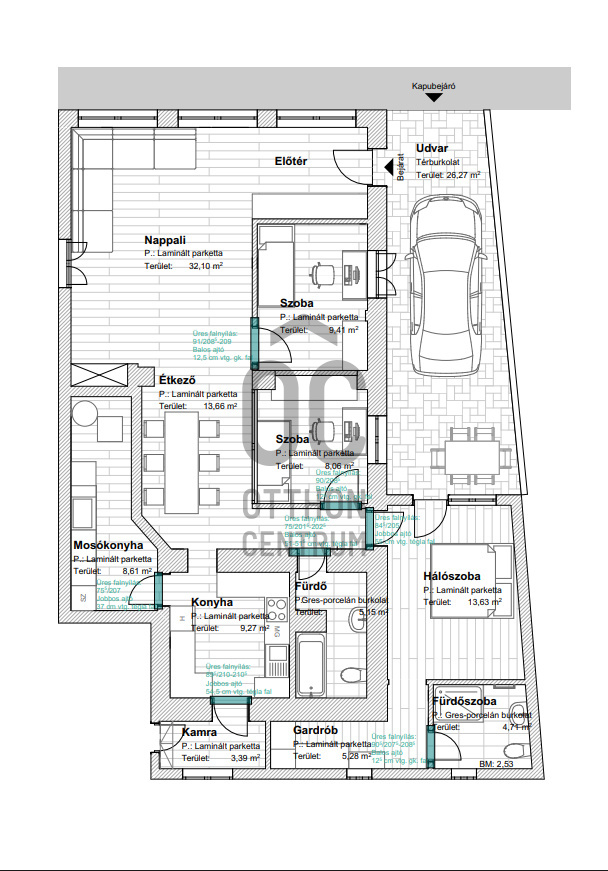
Eladó a Budapest XI. kerületben, Sasadon, csendes mellékutcában egy tejleskörűen felújított nettó 114 m2-es, földszinti, 4 szobás társsasházi lakás. A lakásba külön bejáraton, a saját térkövezett, 27 m2-es udvaron át lehet bejutni automatizált nagykapun. Ezt a burkolt kertrészt gépkocsi beállónak lehet használni, de alkalmas terasznak is. Az ingatl...
+ Tovább olvasom
Lokáció
1118 Budapest