Nyelv:
Kezdd el!
Eladó
Kiadó
Tulajdonos vagyok
Ingatlanos vagyok
Zoomlla-funkciók
Eladó ház Telki 142m2
2089 Telki
ID: 109894
180 M Ft (363 E Ft/m2)
Terület
496 m2
Hálószobák
4
Ingatlan adatok
Típus: Ház
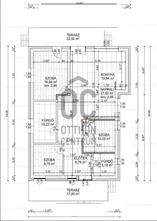
Terület: 142 m2
Erkély / Terasz területe: 707 m2
Hálószobák: 4
Építés éve: Max. 5 éve
Ár: 180 000 000 Ft
Ár/m2: 363 E Ft/m2
Emelet: 1+ emelet
Leírás
Eladó Telkiben új építésű, K. ÉK.-i fekvésű, családi ház, csendes mellékutcában. Alap, falak, födém és tető szigetelt. A Minimál stílusú épület nappali-étkező- konyha, előtér (bejárat), kettő fürdőszoba (káddal és zuhanyzóval), három hálószoba, kettő félszoba (padlástérben), közlekedő valamint előszoba. A nappaliból valamint a konyhából a kényelmes...
+ Tovább olvasom
Lokáció
2089 Telki