Nyelv:
Kezdd el!
Eladó
Kiadó
Tulajdonos vagyok
Ingatlanos vagyok
Zoomlla-funkciók
Kiadó ház Budapest I. Krisztinaváros I..
1013 Budapest
ID: 109865
1.1 M Ft /hó
Terület
206 m2
Hálószobák
0
Ingatlan adatok
Típus:
Terület: 206 m2
Hálószobák: 0
Építés éve: 20+ éve
Ár: 1 109 388 Ft
Emelet: 1+ emelet
Beköltözhető ekkortól: Elérhető
Leírás
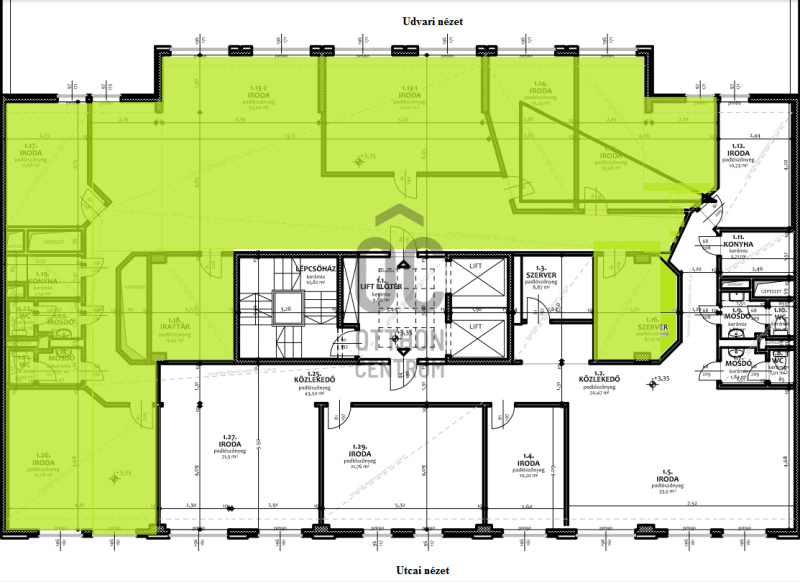
KIADÓ egy központi elhelyezkedésű, I. kerületi irodaház I. emeletén lévő fél irodai szint.

A szinten csupán két nagyobb iroda helyezkedik el.
Teljesen elkülönített, zárható irodai blokkok, saját teakonyhával, férfi- női mosdókkal és szerverszobával kialakított bérlemény várja hosszabb távú bérlőjét.

Az irodaházról:
- frekventált helyen a Krisztin
...
+ Tovább olvasom
Lokáció
1013 Budapest