Nyelv:
Kezdd el!
Eladó
Kiadó
Tulajdonos vagyok
Ingatlanos vagyok
Zoomlla-funkciók
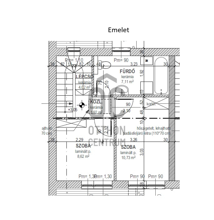
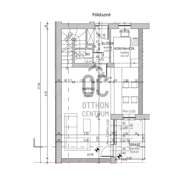
Eladó lakás Cegléd 62m2
2700 Cegléd
ID: 109384
57 M Ft (919 E Ft/m2)
Terület
62 m2
Hálószobák
3
Ingatlan adatok
Típus: Lakás
Terület: 62 m2
Hálószobák: 3
Építés éve: Max. 5 éve
Ár: 57 000 000 Ft
Ár/m2: 919 E Ft/m2
Emelet: 1+ emelet
Kilátás az ingatlanból: Belső udvar
Leírás
Egy komplex lakást ajánlok, nemcsak lakást, hanem hozzá ZÁRT UDVARI PARKOLÓT, TÁROLÓT is kapsz, de nézzük a részleteket!

Amennyiben Cégléden nézegetünk ingatlant, akkor már a használt, kicsit korszerűtlen, felújítandó ingatlanokra is látjuk a 700-800.000 Ft/nm árat.

Ezen lakás:
- Új építésű
- Kifejezetten korszerű aanyagokból
- Megújúló energivál
...
+ Tovább olvasom
Lokáció
2700 Cegléd