Nyelv:
Kezdd el!
Eladó
Kiadó
Tulajdonos vagyok
Ingatlanos vagyok
Zoomlla-funkciók
Eladó lakás Budapest XI. 72m2
1117 Budapest
ID: 109321
143.4 M Ft (2 M Ft/m2)
Terület
72 m2
Hálószobák
3
Ingatlan adatok
Típus: Lakás
Terület: 72 m2
Hálószobák: 3
Építés éve: Max. 5 éve
Ár: 143 400 000 Ft
Ár/m2: 2 M Ft/m2
Emelet: Felső szint
Kilátás az ingatlanból: Park
Leírás
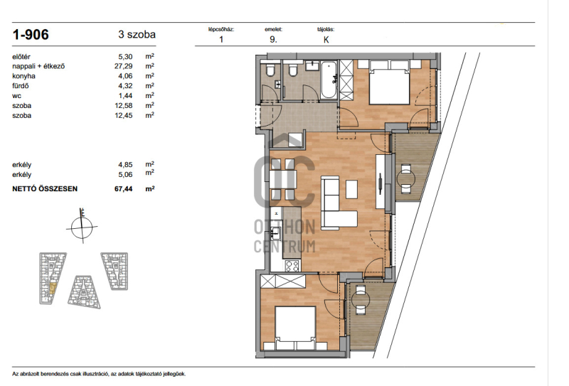
Az ingatlan nettó alapterülete 67,44 m² + 4,85 m² erkély + 5,06 m² erkély.
Projekt bemutatása

Ott, ahol a természet és a városi élet találkozik.
A budai Duna-parton megvalósuló új prémium fejlesztés a vízparti élet luxusát kínálja modern, elegáns formában.
Tágas teraszok, lenyűgöző panoráma, fenntartható műszaki megoldások – mindez néhány lépésre
...
+ Tovább olvasom
Lokáció
1117 Budapest