Nyelv:
Kezdd el!
Eladó
Kiadó
Tulajdonos vagyok
Ingatlanos vagyok
Zoomlla-funkciók
Eladó lakás Budapest XI. 47m2
1117 Budapest
ID: 109317
84.9 M Ft (1.8 M Ft/m2)
Terület
47 m2
Hálószobák
2
Ingatlan adatok
Típus: Lakás
Terület: 47 m2
Hálószobák: 2
Építés éve: Max. 5 éve
Ár: 84 900 000 Ft
Ár/m2: 1.8 M Ft/m2
Emelet: Felső szint
Kilátás az ingatlanból: Park
Leírás
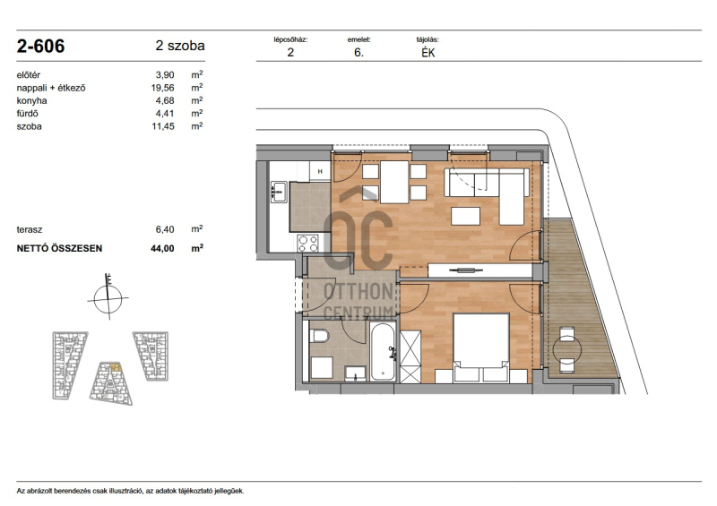
Az ingatlan nettó alapterülete 44 m² + 6,40 m² terasz.
Projekt bemutatása

Ott, ahol a természet és a városi élet találkozik.
A budai Duna-parton megvalósuló új prémium fejlesztés a vízparti élet luxusát kínálja modern, elegáns formában.
Tágas teraszok, lenyűgöző panoráma, fenntartható műszaki megoldások – mindez néhány lépésre a folyótól, Buda din
...
+ Tovább olvasom
Jellemzők
  • Erkély
Lokáció
1117 Budapest