Nyelv:
Kezdd el!
Eladó
Kiadó
Tulajdonos vagyok
Ingatlanos vagyok
Zoomlla-funkciók
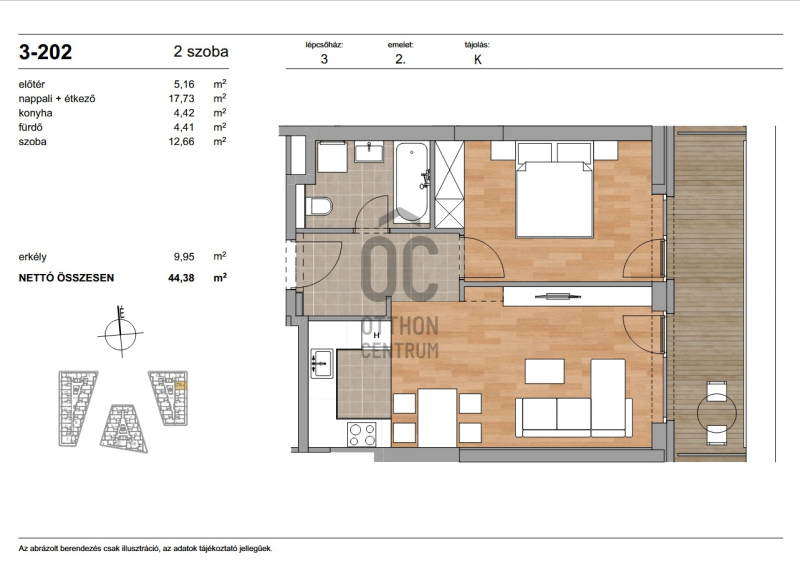
Eladó lakás Budapest XI. 49m2
1117 Budapest
ID: 109299
88.5 M Ft (1.8 M Ft/m2)
Terület
49 m2
Hálószobák
2
Ingatlan adatok
Típus: Lakás
Terület: 49 m2
Hálószobák: 2
Építés éve: Max. 5 éve
Ár: 88 500 000 Ft
Ár/m2: 1.8 M Ft/m2
Emelet: Felső szint
Kilátás az ingatlanból: Park
Leírás
Az ingatlan nettó alapterülete 44,38 m² + 9,95 m² erkély.
Projekt bemutatása

Ott, ahol a természet és a városi élet találkozik.
A budai Duna-parton megvalósuló új prémium fejlesztés a vízparti élet luxusát kínálja modern, elegáns formában.
Tágas teraszok, lenyűgöző panoráma, fenntartható műszaki megoldások – mindez néhány lépésre a folyótól, Buda
...
+ Tovább olvasom
Jellemzők
  • Erkély
Lokáció
1117 Budapest