Nyelv:
Kezdd el!
Eladó
Kiadó
Tulajdonos vagyok
Ingatlanos vagyok
Zoomlla-funkciók
Eladó lakás Pétfürdő 54m2
8105 Pétfürdő
ID: 109252
34.9 M Ft (646 E Ft/m2)
Terület
54 m2
Hálószobák
2
Ingatlan adatok
Típus: Lakás
Terület: 54 m2
Hálószobák: 2
Építés éve: 20+ éve
Ár: 34 900 000 Ft
Ár/m2: 646 E Ft/m2
Emelet: Felső szint
Kilátás az ingatlanból: Város
Leírás
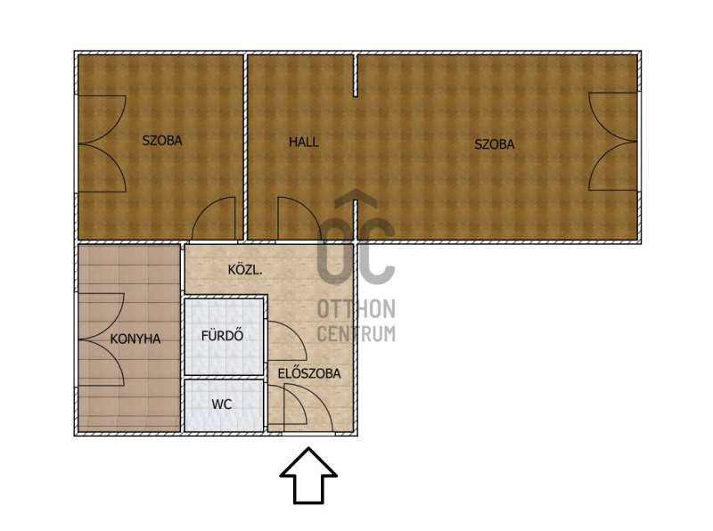
PÉTFÜRDŐN ELADÓ 54 m2-es, 2 szobás LAKÁS
önálló TÁROLÓVAL

Ingatlan jellemzői:

- 4 emeletes panelprogramos épületben
- 4. emelet
- nyugati fekvés
- 54 m2 ( 2szoba, hall, konyha, előszoba, fürdőszoba, közlekedő és egy wc)
- fűtése: távfűtés egyedi méréssel
- meleg víz: távhő
- a tulajdonos esztétikailag felújította a lakást
- műanyag nyílászárók
-
...
+ Tovább olvasom
Lokáció
8105 Pétfürdő