Nyelv:
Kezdd el!
Eladó
Kiadó
Tulajdonos vagyok
Ingatlanos vagyok
Zoomlla-funkciók
Eladó ház Budapest III. 230m2
1037 Budapest
ID: 109136
287.2 M Ft (474 E Ft/m2)
Terület
606 m2
Hálószobák
5
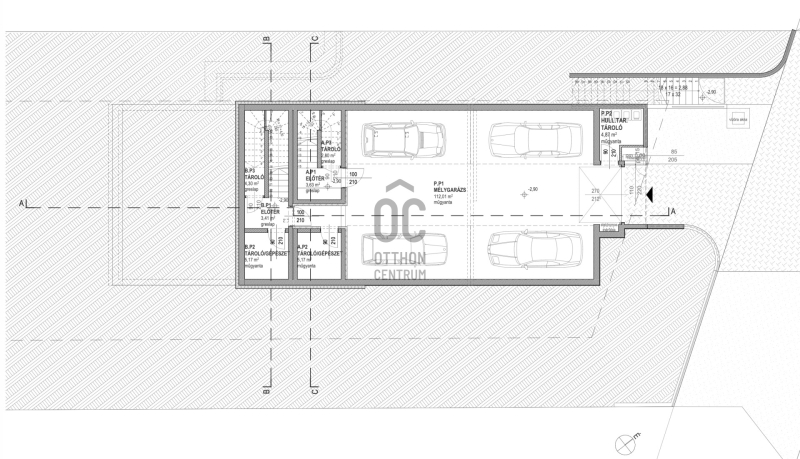
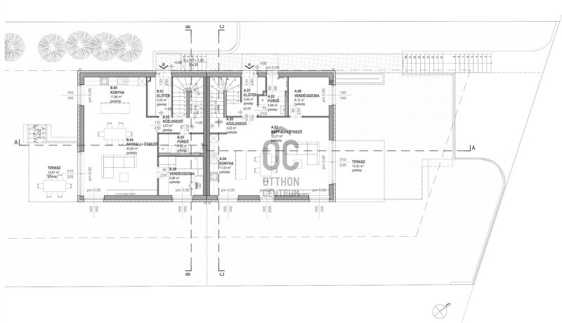
Ingatlan adatok
Típus: Ház
Terület: 230 m2
Erkély / Terasz területe: 751 m2
Hálószobák: 5
Építés éve: Max. 5 éve
Ár: 287 200 000 Ft
Ár/m2: 474 E Ft/m2
Emelet: 1+ emelet
Leírás
Eladó, Minőségi alapanyagokkal épülő, 229,91 m²-es, 5 szobás, 2 fürdőszobás, Ikerház 751 m²-es telekkel.

FONTOSABB TUDNIVALÓK A LAKÁSRÓL:
- Újépítésű, minőségi alapanyagok felhasználásával,
- Modern tervezéssel és kivitelezéssel készül,
- Praktikus elrendezéssel és helykihasználással,
- Korszerű, alacsony hőátbocsátási tényezővel tervezett,
- Vilá
...
+ Tovább olvasom
Lokáció
1037 Budapest