Nyelv:
Kezdd el!
Eladó
Kiadó
Tulajdonos vagyok
Ingatlanos vagyok
Zoomlla-funkciók
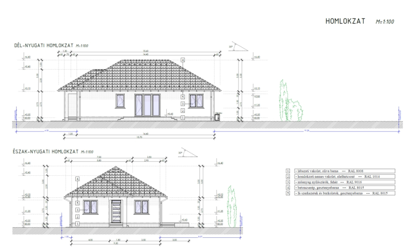
Eladó ház Maglód 113m2
2234 Maglód
ID: 109106
109.9 M Ft (169 E Ft/m2)
Terület
650 m2
Hálószobák
5
Ingatlan adatok
Típus: Ház
Terület: 113 m2
Erkély / Terasz területe: 1074 m2
Hálószobák: 5
Építés éve: Max. 5 éve
Ár: 109 900 000 Ft
Ár/m2: 169 E Ft/m2
Garázs: 1
Emelet: 1+ emelet
Kilátás az ingatlanból: Park
Leírás
Maglódon a Dózsa György úton, 1074 m2-es telken, újonnan épülő nettó 111,29 m2 hasznos lakótérrel rendelkező, 4 szoba + nappalis önálló családi ház eladó.

Csok plusz, Otthon Start elérhető!

A terv még módosítható, igény szerint kialakítható három szobával és nagyobb nappalival is a családi ház!

Az ingatlan 30-as Nútféderes tégla falazóelemből
...
+ Tovább olvasom
Lokáció
2234 Maglód