Nyelv:
Kezdd el!
Eladó
Kiadó
Tulajdonos vagyok
Ingatlanos vagyok
Zoomlla-funkciók
Kiadó lakás Gárdony 38m2
2484 Gárdony
ID: 108962
150 E Ft /hó
Terület
38 m2
Hálószobák
2
Ingatlan adatok
Típus: Lakás
Terület: 38 m2
Hálószobák: 2
Építés éve: Max. 5 éve
Ár: 150 000 Ft
Emelet: 1+ emelet
Kilátás az ingatlanból: Belső udvar
Beköltözhető ekkortól: Elérhető
Leírás
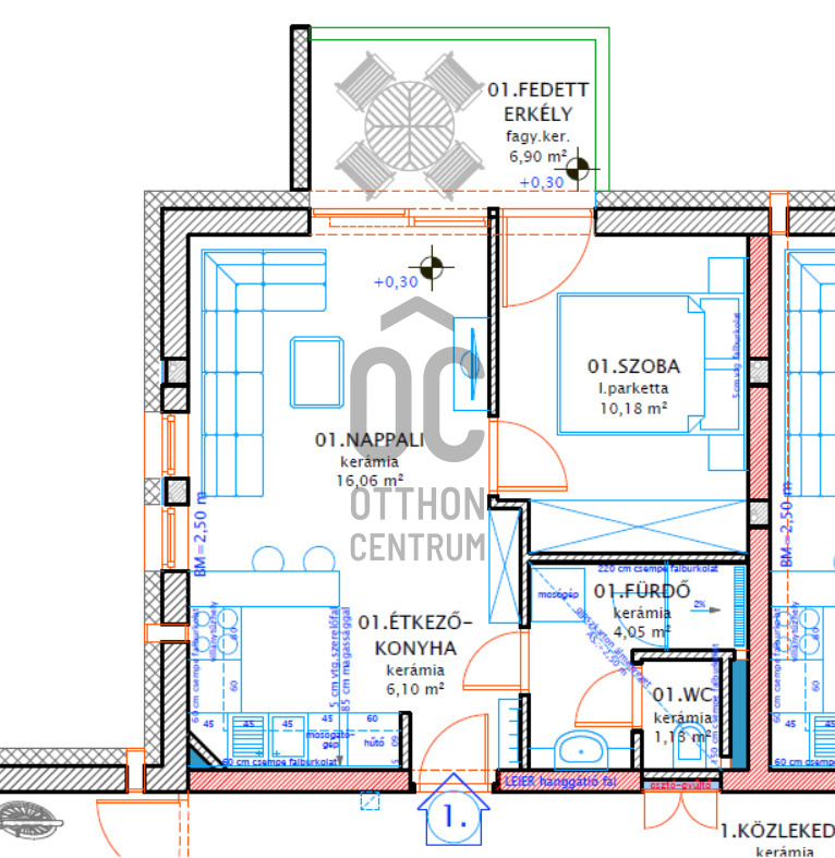
Új építésű, földszinti, fedett teraszos kis lakás bútorozatlanul, hosszú távra kiadó a Termálfürdő közelében.

Lakás jellemzői:
• 37,52 m² hasznos alapterület + 6,9 m² fedett terasz
• Nappali + hálószoba, konyha-étkező, fürdőszoba és külön mellékhelyiség
• Modern, hőszivattyús mennyezeti fűtés-hűtés – alacsony rezsivel
• Keleti tájolás, világos, zö
...
+ Tovább olvasom
Lokáció
2484 Gárdony