Nyelv:
Kezdd el!
Eladó
Kiadó
Tulajdonos vagyok
Ingatlanos vagyok
Zoomlla-funkciók
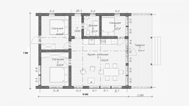
Eladó ház Hernád 75m2
2376 Hernád
ID: 108938
36 M Ft (37 E Ft/m2)
Terület
975 m2
Hálószobák
2+1
Ingatlan adatok
Típus: Ház
Terület: 75 m2
Erkély / Terasz területe: 1800 m2
Hálószobák: 2+1
Építés éve: Max. 5 éve
Ár: 35 990 000 Ft
Ár/m2: 37 E Ft/m2
Emelet: 1+ emelet
Leírás
Hernádon, aszfaltozott, csendes utcában értékesítésre kínálok egy 75  m2-es könnyűszerkezetes családi házat.  A telek adottságaiból adódóan mérete a háznak:  7.5  méter széles  X  10 méter  hosszú. De lehet egyedileg hosszabb is a ház. A terasz 20 m2-es.   Az ingatlanban található 2 szoba, 1 hálószoba,  amerikai konyha, 1  fürdőszoba.  A közművek k...
+ Tovább olvasom
Jellemzők
  • Légkondícináló
Lokáció
2376 Hernád