Nyelv:
Kezdd el!
Eladó
Kiadó
Tulajdonos vagyok
Ingatlanos vagyok
Zoomlla-funkciók
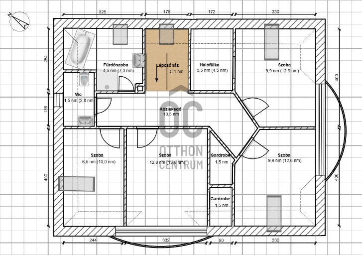
Eladó ház Solymár 270m2
2083 Solymár
ID: 108749
230 M Ft (417 E Ft/m2)
Terület
551 m2
Hálószobák
8
Ingatlan adatok
Típus: Ház
Terület: 270 m2
Erkély / Terasz területe: 562 m2
Hálószobák: 8
Építés éve: 20+ éve
Ár: 230 000 000 Ft
Ár/m2: 417 E Ft/m2
Emelet: 1+ emelet
Leírás
Találd meg OTTHONOD!

Egy hely, ahol minden részlet rólad szól.
Ez az ingatlan nemcsak szép, hanem átgondolt, praktikus, és minden részletében otthonos.
Egy panorámás ház, amit szeretettel építettek, igényesen karbantartottak, és ahol a természet közelsége találkozik a kényelemmel.
Ha eleged van a város zajából, de nem akarsz lemondani a kényelmes
...
+ Tovább olvasom
Lokáció
2083 Solymár