Nyelv:
Kezdd el!
Eladó
Kiadó
Tulajdonos vagyok
Ingatlanos vagyok
Zoomlla-funkciók
Eladó lakás Budapest XI. Sasad-Sashegy..
1118 Budapest
ID: 108725
169.9 M Ft (1.4 M Ft/m2)
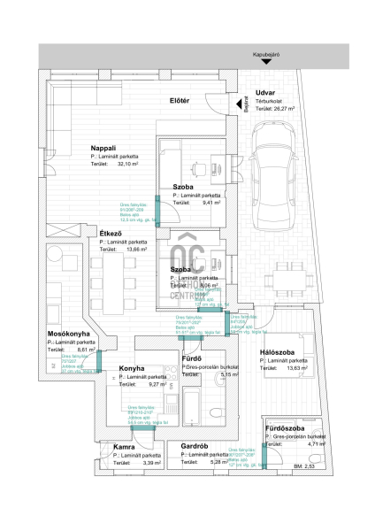
Terület
118 m2
Hálószobák
3
Ingatlan adatok
Típus: Lakás
Terület: 118 m2
Hálószobák: 3
Építés éve: Max. 5 éve
Ár: 169 900 000 Ft
Ár/m2: 1.4 M Ft/m2
Emelet: 1+ emelet
Kilátás az ingatlanból: Város
Leírás
A nyugalom szigete a város szívéhez közel” – különleges otthon Sasad zöldövezetében

Ha olyan otthont keresel, ahol a nyugalom nem luxus, hanem alapélmény, ez a kivételes ingatlan a XI. kerület zöldövezetében épp Neked szól. Itt a madárcsicsergés a reggeli rutin része, miközben a város legfontosabb pontjai mégis könnyen elérhetők. Tágas terek, prak
...
+ Tovább olvasom
Lokáció
1118 Budapest