ID: 108506
						
						
								
								
									99.5 M Ft								
								
																	
										(1.3 M Ft/m2)
									
																	
							
							
						
							Ingatlan adatok						
				
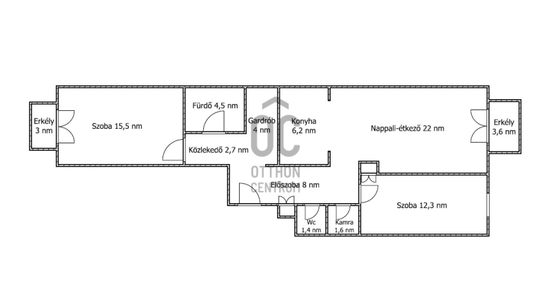
						| Típus: | Lakás | 
| Terület: | 79 m2 | 
| Hálószobák: | 3 | 
| Építés éve: | Max. 20 éve | 
| Ár: | 99 490 000 Ft | 
| Ár/m2: | 1.3 M Ft/m2 | 
| Emelet: | Felső szint | 
| Kilátás az ingatlanból: | Város | 
								Leírás							
								
																Eladó a 10.kerületben Kőbányán egy 2008-ban épült liftes társasház 1. emeletén, egy 79 nm-es, praktikus elosztású, igényes, 3 szobás, külön Wc-vel, kamrával és dupla erkéllyel is rendelkező, kitűnő állapotú lakás. Tágas és erkélyes nappaliján kívül, két szintén tágas hálószobával (melyek egyike szintén erkélyes), amerikai konyhával, kádas fürdővel,... + Tovább olvasom 
																
														
						
									Jellemzők								
									
								- Erkély
 
								Lokáció							
							
							1102 Budapest