Nyelv:
Kezdd el!
Eladó
Kiadó
Tulajdonos vagyok
Ingatlanos vagyok
Zoomlla-funkciók
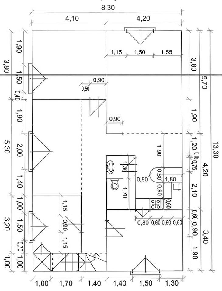
Kiadó lakás Budapest XXI. 112m2
1211 Budapest, Kossuth Lajos utca
ID: 108225
320 E Ft /hó
Terület
112 m2
Hálószobák
5
Ingatlan adatok
Típus: Lakás
Terület: 112 m2
Hálószobák: 5
Építés éve: 20+ éve
Ár: 320 000 Ft
Emelet: 1+ emelet
Beköltözhető ekkortól: Elérhető
Leírás
Kiadó iroda Csepelen – Kossuth Lajos utca 30–46. - IRODA HELYISÉG



Kiadó Csepelen, a Kossuth Lajos utca 30–46. szám alatt egy 112 m² alapterületű, kétszintes, világos és jól beosztású irodahelyiség-együttes. Az ingatlan öt különálló irodahelyiségből áll, így ideális választás lehet ügyvédi irodának, könyvelőirodának, IT
...
+ Tovább olvasom
Lokáció
1211 Budapest, Kossuth Lajos utca