Nyelv:
Kezdd el!
Eladó
Kiadó
Tulajdonos vagyok
Ingatlanos vagyok
Zoomlla-funkciók
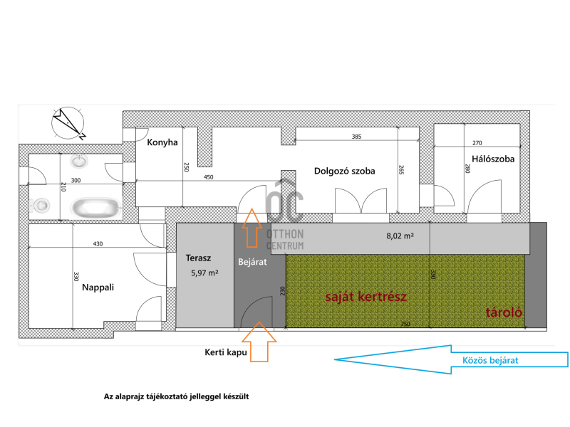
Eladó ház Budakeszi 52m2
2092 Budakeszi
ID: 107891
58 M Ft (527 E Ft/m2)
Terület
110 m2
Hálószobák
3
Ingatlan adatok
Típus: Ház
Terület: 52 m2
Erkély / Terasz területe: 115 m2
Hálószobák: 3
Építés éve: 20+ éve
Ár: 58 000 000 Ft
Ár/m2: 527 E Ft/m2
Emelet: 1+ emelet
Kilátás az ingatlanból: Park
Leírás
Képzeld el, hogy egy olyan otthonra találsz, ami nemcsak a mindennapjaidat, hanem az életedet is megváltoztatja!
Ez a frissen felújított, 51,5 nm-es, háromszobás lakás Budakeszi központjában, a Fő utcán vár rád, és mindent megad, amire egy fiatal felnőttnek szüksége lehet. Az ingatlan kiváló állapotban van, így azonnal költözhető, és tehermentes,
...
+ Tovább olvasom
Lokáció
2092 Budakeszi