Nyelv:
Kezdd el!
Eladó
Kiadó
Tulajdonos vagyok
Ingatlanos vagyok
Zoomlla-funkciók
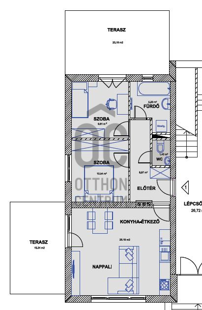
Eladó lakás Makó 60m2
6900 Makó
ID: 107746
59.9 M Ft (998 E Ft/m2)
Terület
60 m2
Hálószobák
2
Ingatlan adatok
Típus: Lakás
Terület: 60 m2
Hálószobák: 2
Építés éve: 20+ éve
Ár: 59 900 000 Ft
Ár/m2: 998 E Ft/m2
Emelet: 1+ emelet
Kilátás az ingatlanból: Város
Leírás
Tisztelt Érdeklődő!
Makón, a Liget Lakóparkban jelenleg is zajlanak azok az átalakítási és felújítási munkálatok, amelyek egy teljesen megújult, modern földszinti lakást fognak eredményezni! Ez azt jelenti, hogy Ön lesz az elsők között, aki birtokba veheti ezt a világos, praktikus elrendezésű otthont – vadonatúj állapotban.
Az ingatlan a Liget utcá
...
+ Tovább olvasom
Lokáció
6900 Makó