Nyelv:
Kezdd el!
Eladó
Kiadó
Tulajdonos vagyok
Ingatlanos vagyok
Zoomlla-funkciók
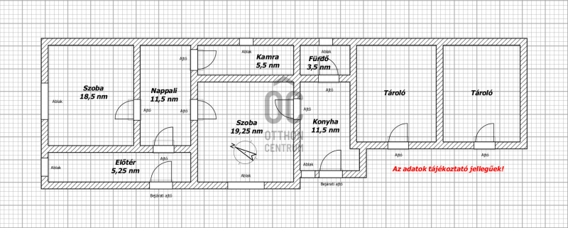
Eladó ház Egyek 75m2
4069 Egyek
ID: 107654
13 M Ft (20 E Ft/m2)
Terület
647 m2
Hálószobák
2
Ingatlan adatok
Típus: Ház
Terület: 75 m2
Erkély / Terasz területe: 1143 m2
Hálószobák: 2
Építés éve: 20+ éve
Ár: 13 000 000 Ft
Ár/m2: 20 E Ft/m2
Emelet: 1+ emelet
Leírás
Egyeken, az élő Tisza és a Hortobágy közé ékelődve, a Tisza-tó "fővárosától" Tiszafüredtől 10 km-re, a település csendes, jó közlekedésű környékén, barátságos utcában családi ház ELADÓ!

A településen minden, ami egy család életéhez szükséges, megtalálható /iskola, óvoda, bölcsőde, sportpálya játszótérrel,
cukrászda, orvosi rendelő, gyógyszertár/,
...
+ Tovább olvasom
Lokáció
4069 Egyek