Nyelv:
Kezdd el!
Eladó
Kiadó
Tulajdonos vagyok
Ingatlanos vagyok
Zoomlla-funkciók
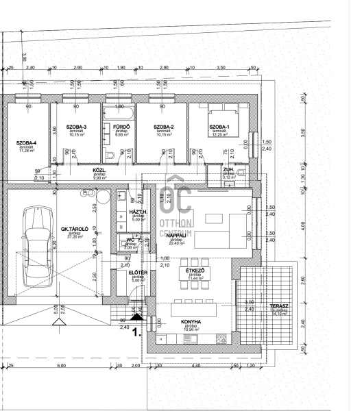
Eladó ház Debrecen 157m2
4063 Debrecen
ID: 107574
188.5 M Ft (387 E Ft/m2)
Terület
487 m2
Hálószobák
5
Ingatlan adatok
Típus: Ház
Terület: 157 m2
Erkély / Terasz területe: 660 m2
Hálószobák: 5
Építés éve: Max. 5 éve
Ár: 188 520 000 Ft
Ár/m2: 387 E Ft/m2
Emelet: 1+ emelet
Leírás
Eladásra kínálunk egy kivételes minőségben megtervezett, letisztult, modern stílusú ikerházat Debrecen Nagymacs részén, amely minden szempontból a jövő otthona. Az ingatlan magas szintű energiahatékonysággal, kimagasló komforttal és exkluzív esztétikával várja új tulajdonosát. Az otthon négy különálló, tágas hálószobával lett kialakítva, így ideáli...
+ Tovább olvasom
Lokáció
4063 Debrecen