Nyelv:
Kezdd el!
Eladó
Kiadó
Tulajdonos vagyok
Ingatlanos vagyok
Zoomlla-funkciók
Kiadó lakás Budapest VI. Nagykörúton k..
1064 Budapest
ID: 107556
330 E Ft /hó
Terület
58 m2
Hálószobák
3
Ingatlan adatok
Típus: Lakás
Terület: 58 m2
Hálószobák: 3
Építés éve: Max. 5 éve
Ár: 330 000 Ft
Emelet: 1+ emelet
Kilátás az ingatlanból: Város
Beköltözhető ekkortól: Elérhető
Leírás
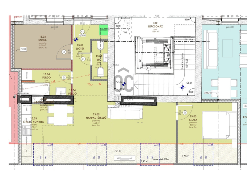
KIADÓ,Pesten, a 6.kerületben egy modern, 2024-ben épült újszerű, liftes, 5.emeleti társasházi lakás.
Az ingatlan nappali+két hálószobás, kitűnő elrendezésű, világos, kiváló adottságokkal bír.
Hőszivattyús fűtése- hűtése van, padlófűtés és klíma is van, ikeás, gépesített konyha, prémium nyílászárók, gyönyörű burkolatok, szaniterek lettek beépítve.
...
+ Tovább olvasom
Jellemzők
  • Bútorozott
Lokáció
1064 Budapest