Nyelv:
Kezdd el!
Eladó
Kiadó
Tulajdonos vagyok
Ingatlanos vagyok
Zoomlla-funkciók
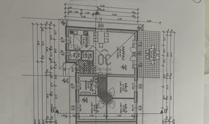
Eladó ház Diósd 81m2
2049 Diósd
ID: 107397
134.9 M Ft (557 E Ft/m2)
Terület
242 m2
Hálószobák
4
Ingatlan adatok
Típus: Ház
Terület: 81 m2
Erkély / Terasz területe: 321 m2
Hálószobák: 4
Építés éve: Max. 10 éve
Ár: 134 900 000 Ft
Ár/m2: 557 E Ft/m2
Emelet: 1+ emelet
Leírás
Egy kivételes lehetőséget kínálunk Önnek Diósd szívében, ahol a családosok számára ideális otthonra lelhetnek.
Ez a modern, használt ház brutto 99 négyzetméteres alapterületével és 321 négyzetméteres telkével tökéletes választás mindazok számára, akik a város zajától távol, de mégis központi elhelyezkedésben szeretnének élni.
Az ingatlanban 3 szo
...
+ Tovább olvasom
Lokáció
2049 Diósd