Nyelv:
Kezdd el!
Eladó
Kiadó
Tulajdonos vagyok
Ingatlanos vagyok
Zoomlla-funkciók
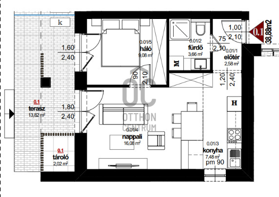
Eladó lakás Kőszegszerdahely 47m2
9725 Kőszegszerdahely
ID: 107252
49.9 M Ft (1.1 M Ft/m2)
Terület
47 m2
Hálószobák
2
Ingatlan adatok
Típus: Lakás
Terület: 47 m2
Hálószobák: 2
Építés éve: Max. 5 éve
Ár: 49 900 000 Ft
Ár/m2: 1.1 M Ft/m2
Emelet: 1+ emelet
Kilátás az ingatlanból: Belső udvar
Leírás
Fedezze fel ezt a rendkívüli lehetőséget, amely tökéletes választás lehet középkorú családok, fiatal párok vagy befektetők számára! Kínálatunkban egy új, kiváló állapotú 47 négyzetméteres lakás található Kőszegszerdahelyen. A modern, prémium kivitelezésű ingatlan tágas nappalival, háló szobával és egy elegáns fürdőszobával rendelkezik, amely minde...
+ Tovább olvasom
Lokáció
9725 Kőszegszerdahely