Nyelv:
Kezdd el!
Eladó
Kiadó
Tulajdonos vagyok
Ingatlanos vagyok
Zoomlla-funkciók
Eladó ház Budapest XV. Rákospalota 280..
1151 Budapest
ID: 107213
263 M Ft (400 E Ft/m2)
Terület
657 m2
Hálószobák
9
Ingatlan adatok
Típus: Ház
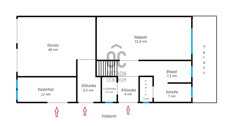
Terület: 280 m2
Erkély / Terasz területe: 753 m2
Hálószobák: 9
Építés éve: 20+ éve
Ár: 263 000 000 Ft
Ár/m2: 400 E Ft/m2
Emelet: 1+ emelet
Leírás
Befektetők (is) figyelem!

Sok lehetőséget magába foglaló, átalakítható, újra gondolható. Kis hostel, munkásszállás vagy 2 generáció részére elszeparáltan használható. Érdemes rápillantani mert ….

…. Budapest XV. kerületéből, Rákospalotáról hoztam Önöknek egy brtt. 326 nm-es, 8 szobás és 1 félszobás, 1986-ban, téglából épített, 2 generációs család
...
+ Tovább olvasom
Lokáció
1151 Budapest