Nyelv:
Kezdd el!
Eladó
Kiadó
Tulajdonos vagyok
Ingatlanos vagyok
Zoomlla-funkciók
Kiadó lakás Budapest II. Törökvész 50m..
1026 Budapest, Trombitás út
ID: 107059
320 E Ft /hó
Terület
50 m2
Hálószobák
2+1
Ingatlan adatok
Típus: Lakás
Terület: 50 m2
Hálószobák: 2+1
Építés éve: 20+ éve
Ár: 320 000 Ft
Emelet: 1+ emelet
Beköltözhető ekkortól: Elérhető
Leírás
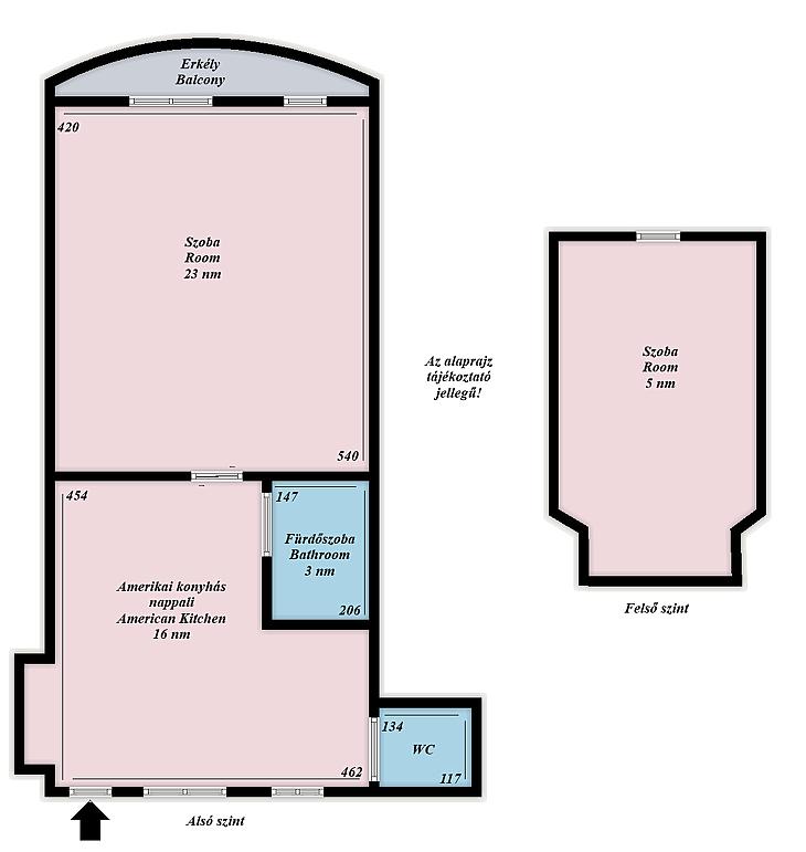
Kiadó Panorámás, Felújított 2 Szobás Lakás a Trombitás úton – Kutyabarát Otthon!



Kiadásra kínálunk egy különleges hangulatú, belső kétszintes, részben bútorozott lakást a közkedvelt Trombitás úton! A lakás 2023-ban teljes körű felújításon esett át, így modern, mégis otthonos környezet várja új lakóját.



Főbb jellemzők:

- 2 szobás (als
...
+ Tovább olvasom
Lokáció
1026 Budapest, Trombitás út