Nyelv:
Kezdd el!
Eladó
Kiadó
Tulajdonos vagyok
Ingatlanos vagyok
Zoomlla-funkciók
Eladó ház Halásztelek 240m2
2314 Halásztelek, Halásztelek Családiházas részén
ID: 106977
134.8 M Ft (243 E Ft/m2)
Terület
555 m2
Hálószobák
7
Ingatlan adatok
Típus: Ház
Terület: 240 m2
Erkély / Terasz területe: 629 m2
Hálószobák: 7
Építés éve: 20+ éve
Ár: 134 800 000 Ft
Ár/m2: 243 E Ft/m2
Emelet: 1+ emelet
Leírás
Otthon Start hitelre alkalmas!!

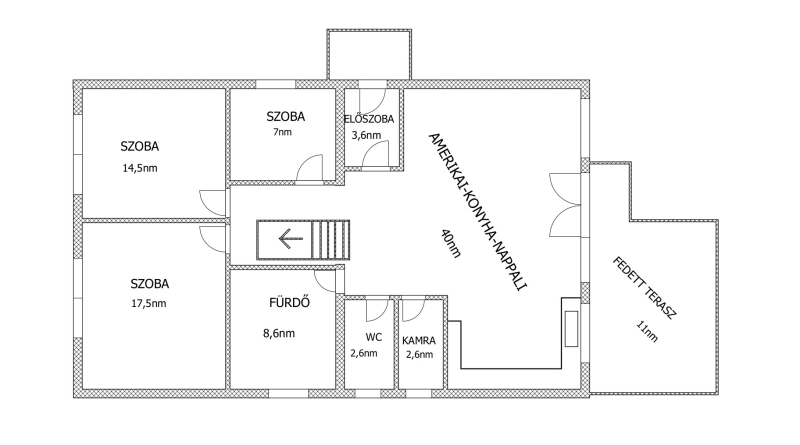
Megvételre kínálok egy 240nm-es, 2 szintes,
amerikai konyhás-nappali+ 6szobás, 2 fürdős téglaházat, 629nm telken.
Rengeteg pozitívum jellemzi ezt a csodás, KIVÁLLÓ ÁLLAPOTÚ OTTHONT!
A földszinten:
-Előszoba,
-3db szoba,
-Fürdő,
-Wc,
-Kamra,
-Hatalmas, közel 40nm-es, amerikai konyhás-Nappali 3,2 méteres belmagasságg
...
+ Tovább olvasom
Jellemzők
  • Légkondícináló
  • Erkély
  • Raktár
Lokáció
2314 Halásztelek, Halásztelek Családiházas részén